Buckets to comforts with memory

4.2 V8 32v Naturally Aspirated - 414 bhp
ians63
2nd Gear
Posts: 124
Joined: Mon Mar 09, 2015 3:44 pm

Re: Buckets to comforts with memory

Post by ians63 » Wed Dec 16, 2015 12:15 pm

pDkALO wrote:As you say, illuminated button sounds positive, as it's clearly connected up

You're certain that you've got the correct window motor with the 8H prefix and all of the connection pins? (not some blanked out as on a standard car)
I tried a 8H widow motor with the same results - this also made the windows erratic so I think that's a non starter.

User avatar
PetrolDave
Cruising
Posts: 7599
Joined: Mon Nov 07, 2005 11:28 am
Location: Southampton, Hampshire UK

Re: Buckets to comforts with memory

Post by PetrolDave » Wed Dec 16, 2015 1:25 pm

Have you done all the steps in the "How To" pdf I shared, including connecting the CAN bus?
Gone: 2006 B7 RS4 Avant (Phantom Black)

ians63
2nd Gear
Posts: 124
Joined: Mon Mar 09, 2015 3:44 pm

Re: Buckets to comforts with memory

Post by ians63 » Wed Dec 16, 2015 5:50 pm

PetrolDave wrote:Have you done all the steps in the "How To" pdf I shared, including connecting the CAN bus?
According to the guide pins 5 6 7 are used for the CAN connections. These pins are already wired in so I was hoping it would just be plug and play. Looks like I'll be under the carpet and into A pillar wiring for a bit of investigation.

ians63
2nd Gear
Posts: 124
Joined: Mon Mar 09, 2015 3:44 pm

Re: Buckets to comforts with memory

Post by ians63 » Fri Dec 18, 2015 12:00 am

PetrolDave wrote:Have you done all the steps in the "How To" pdf I shared, including connecting the CAN bus?
Had a look at wiring tonight.according to the guide;-
"The wiring order is as follows;
 T10o/6 to orange/green (or/gn) for CAN Comfort High,
 T10o/7 to orange/brown (or/br) for CAN Comfort Low and
 T10o/5 to green/black (gn/sw)"

Pin 6&7 are wired as per the guide already. Pin 5 is brown (earth). There is no green and black wire coming from the door to connect to.

ians63
2nd Gear
Posts: 124
Joined: Mon Mar 09, 2015 3:44 pm

Re: Buckets to comforts with memory

Post by ians63 » Fri Dec 18, 2015 12:16 pm

ians63 wrote:
PetrolDave wrote:Have you done all the steps in the "How To" pdf I shared, including connecting the CAN bus?
Had a look at wiring tonight.according to the guide;-
"The wiring order is as follows;
 T10o/6 to orange/green (or/gn) for CAN Comfort High,
 T10o/7 to orange/brown (or/br) for CAN Comfort Low and
 T10o/5 to green/black (gn/sw)"

Pin 6&7 are wired as per the guide already. Pin 5 is brown (earth). There is no green and black wire coming from the door to connect to.
Does anyone on here have access to a wiring diagram that would apply to the set up I'm trying to achieve - i.e 2006 A4 B7 memory seats?

User avatar
Surrey Sam
Cruising
Posts: 4195
Joined: Tue Nov 27, 2012 7:34 pm
Location: Sussex

Re: Buckets to comforts with memory

Post by Surrey Sam » Fri Dec 18, 2015 12:56 pm

I can try help out a bit later, seems that you’re rather close.

Any particular component you need the diagram for? There won’t be a big overview for the system unfortunately.
Sepang Blue B8 RS4, MY14, All option packs, B&O, Adv Key, Adapt Cruise, Pan Roof, Akrapovic Titanium Exhaust, + more.
Previous - Sprint Blue B7 RS4 Avant, Ceramics, Sunroof, SS+, Buckets, FBSW, Bluetooth, 2010+ RNSe
Previous - Phantom Black B7 RS4 Avant, Black Optics, Titan pack, SS+, Buckets, FBSW

ians63
2nd Gear
Posts: 124
Joined: Mon Mar 09, 2015 3:44 pm

Re: Buckets to comforts with memory

Post by ians63 » Fri Dec 18, 2015 1:05 pm

Probably just from the door controller to the car dist system I'm just curious as to what the green and black wire referred to in the guide is for.

User avatar
iduff
1st Gear
Posts: 71
Joined: Sat Sep 12, 2015 2:38 am
Location: New Bedford, MA, USA

Re: Buckets to comforts with memory

Post by iduff » Sat Dec 19, 2015 7:56 pm

Here's what my US (driver's side on the left) seat measuring blocks say in VCDS
Attachments
Screen Shot 2015-12-19 at 1.32.38 PM.png
B7 RS4 Sedan, Phantom Black Pearl
Valved non-resonated Milltek with 200-cell DPs, and JHM tune, 10mm spacers
B8.5 Allroad, Monsoon Grey
CPO, stock

Former Quattros
B5 S4 Sedan, C4 S6 Avant, Type 89 Coupe Quattro, Type 44 Quattro Sedan

ians63
2nd Gear
Posts: 124
Joined: Mon Mar 09, 2015 3:44 pm

Re: Buckets to comforts with memory

Post by ians63 » Wed Dec 23, 2015 12:46 pm

Finally got this to work. Combination of missing green / black wire (see previous post for guide) from window regulator to seat power connecting red block and a dodgy Stop / Off switch not latching down (easily spotted in VCDS - once I knew where to look) I put a jumper wire in to test and gave the switch a good spray of contact cleaner and voila memory seats.

Next issue is dipping passenger mirror in reverse not working - anyone have any clues about his one. Not even sure if it's meant to do this, some forums aye some forums naw.

Not massive mods but nice to have.

User avatar
iduff
1st Gear
Posts: 71
Joined: Sat Sep 12, 2015 2:38 am
Location: New Bedford, MA, USA

Re: Buckets to comforts with memory

Post by iduff » Wed Dec 23, 2015 2:05 pm

Perhaps stating the obvious, but you need to have the passenger mirror selected on the adjustment control switch.
B7 RS4 Sedan, Phantom Black Pearl
Valved non-resonated Milltek with 200-cell DPs, and JHM tune, 10mm spacers
B8.5 Allroad, Monsoon Grey
CPO, stock

Former Quattros
B5 S4 Sedan, C4 S6 Avant, Type 89 Coupe Quattro, Type 44 Quattro Sedan

User avatar
Surrey Sam
Cruising
Posts: 4195
Joined: Tue Nov 27, 2012 7:34 pm
Location: Sussex

Re: Buckets to comforts with memory

Post by Surrey Sam » Wed Dec 23, 2015 2:16 pm

Sorry :oops:

I knew there was something that I had recently forgotten to do.

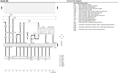
Here is the wiring diagram for the mirror if that's of any use, well done for getting the seats operational.
MirrorWiringDiagram.jpg
Sepang Blue B8 RS4, MY14, All option packs, B&O, Adv Key, Adapt Cruise, Pan Roof, Akrapovic Titanium Exhaust, + more.
Previous - Sprint Blue B7 RS4 Avant, Ceramics, Sunroof, SS+, Buckets, FBSW, Bluetooth, 2010+ RNSe
Previous - Phantom Black B7 RS4 Avant, Black Optics, Titan pack, SS+, Buckets, FBSW

Post Reply

Return to “RS4 (B7 Typ 8E) 2006–2008”

Who is online

Users browsing this forum: Bing [Bot] and 342 guests